We are an architecture design agency

Design.
Architecture.

Architecture

Architecture

the title

Iterative Methods

Leverage agile frameworks to provide a robust synopsis for high level overviews. Iterative approaches to corporate strategy foster collaborative thinking to further the overall value proposition. Organically grow the holistic world view of disruptive innovation.

Architecture

I will render your architecture design plan, elevation, section, site plan .

WORKING

I will create architectural and construction drawings using AutoCAD and Revit .

Interior Design

I will do 3d modeling, interior design and photorealistic 3d rendering using vray device and lumion .

LANDSCAPE

I will create landscape designs,3d modeling and rendering .

Architectural Animation


This section features animated videos of 3D architectural designs, highlighting realistic details, dynamic movements, and virtual walkthroughs.

s​ports complex

A sports center is a premium facility where sports are exercised within an enclosed area. It can be a building (indoor gym), outside (outdoor gym) or have indoor and outdoor sports features mixed together. Facilities include inside the sports center, spa pool, sauna/or steam room, gym.

s​ports complex

Location: Al Minya 
Year: 202​2

view more

  SECTION

Sample Headline

Image from  (A -A)

Image from  (​B -​B )

s​ports complex

A sports center is a premium facility where sports are exercised within an enclosed area. It can be a building (indoor gym), outside (outdoor gym) or have indoor and outdoor sports features mixed together. Facilities include inside the sports center, spa pool, sauna/or steam room, gym.

SAINABI

TAKING YOU TO A BETTER HEALTH

Linda Scavo

SEATING AREA

HOTEL VIEW

RESTURANT

MEDITATION COURT

MASSAGE ROOM

SAINABI

TAKING YOU TO A BETTER HEALTH

S

tation

contemplating freedom. In addition to creating an indirect union between sectors within the fire department

let's start

learn more

plans...

A key characteristic of firefighters is speed, efficiency, and its reflection in the performance of emergency response in addition to the function they perform in the building. The project aims at the connection created by the building and its surroundings, as a concept to create fast and airy entrances.

01

02

03

04

Studies

SECTION

Elevation

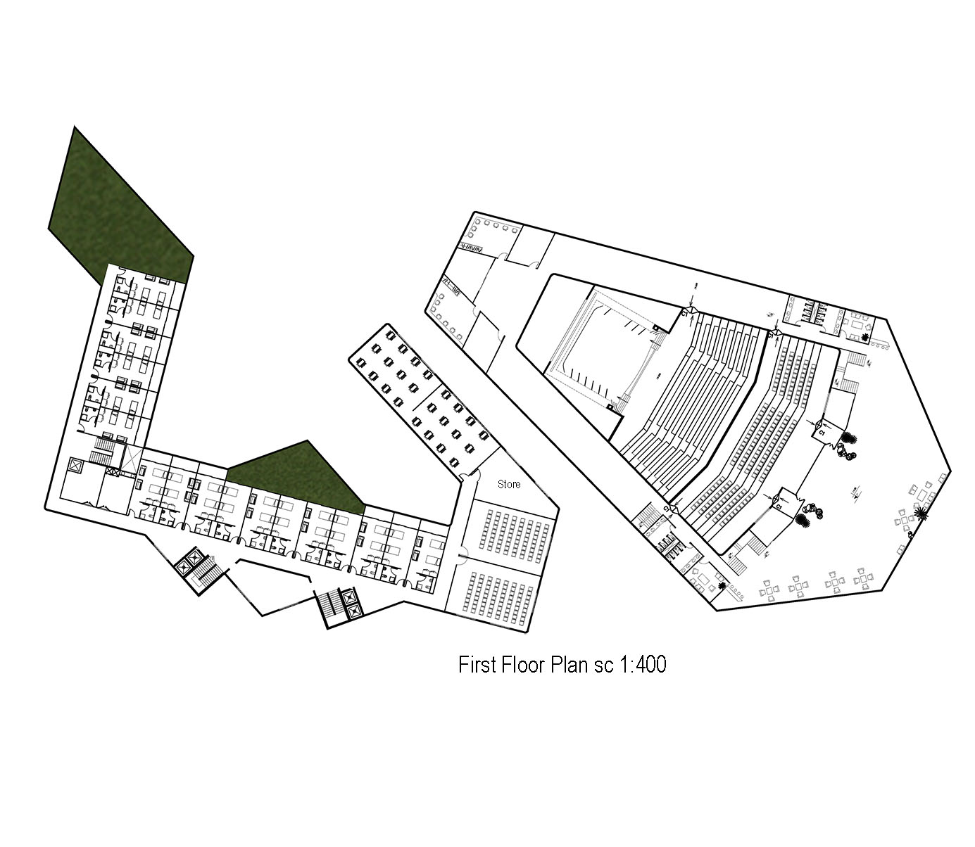
Architecture & Art Academy

Artchitecture college  (Hotel - Theater)

ground floor Plan sc 1:200

Layout sc 1:400

Fifth floor Plan sc 1:400
Ninth floor plan sc 1:400
First Floor Plan sc 1:400
Basement floor plan sc 1:400
Section(B-B) 1:200
Section(A-A) 1:200
Section(A-_A-) 1:200

Studies

It is a veil organized on three tracks and consists of layers of individual tassels made of magnesium alloy. Tassels range from about 2m to 6m in length so that each track moves independently, the veil rotates with overlapping tassels producing different visual effects and opacity levels and adapts to the changing use of the building and reveals the stage on the balcony

Inspired by traditional Chinese fabric, its unique shape creates an exceptional and unforgettable experience for visitors, while the luminous and moving veil creates a unique backdrop for the university's theater"

Architecture & Art Academy